6. Änderung zum Bebauungsplan "Industriegebiet I & II"
Der Gemeinderat Malsch hat in seiner öffentlichen Sitzung am 21.10.2025 gemäß § 10 Abs. 1 BauGB in Verbindung mit § 74 der Landesbauordnung (LBO) und § 4 der Gemeindeordnung (GemO) für Baden-Württemberg die die 6. Änderung des Bebauungsplans Industriegebiet I&II als Satzung beschlossen. Die 6. Änderung des Bebauungsplans ‚Industriegebiet I + II‘ betrifft mit Änderung der Baugrenzen nur den zeichnerischen Teil des ursprünglichen Bebauungsplans in der Fassung der 5. Änderung im Geltungsbereich der Bebauungsplan-Änderung gemäß des zeichnerischen Teil A. Die Begründung zur 6. Änderung geht nur auf Anlass, Inhalte und Rahmenbedingungen der Bebauungsplan Änderung ein. Die planungsrechtlichen Festsetzungen und örtlichen Bauvorschriften des Bebauungsplans ‚Industriegebiet I + II‘ in der Fassung der 5. Änderung bleiben unverändert in Kraft.
Die 6. Änderung des Bebauungsplans ‚Industriegebiet I + II‘ betrifft mit Änderung der Baugrenzen nur den zeichnerischen Teil des ursprünglichen Bebauungsplans in der Fassung der 5. Änderung im Geltungsbereich der Bebauungsplan-Änderung gemäß des zeichnerischen Teil A. Die Begründung zur 6. Änderung geht nur auf Anlass, Inhalte und Rahmenbedingungen der Bebauungsplan Änderung ein. Die planungsrechtlichen Festsetzungen und örtlichen Bauvorschriften des Bebauungsplans ‚Industriegebiet I + II‘ in der Fassung der 5. Änderung bleiben unverändert in Kraft.
Mit dieser Bekanntmachung tritt die 6. Änderung zum Bebauungsplan " Industriegebiet I & II" gemäß § 10 Abs. 3 BauGB in Kraft.
Die Bebauungsplanänderung kann auf Verlangen im Rathaus der Gemeinde Malsch, Hauptstr. 71, II.OG, Fachbereich Planen und Bauen während der üblichen Dienststunden von jedermann eingesehen werden. Auf Verlangen wird über den Inhalt Auskunft gegeben.
Hinweise:
- eine nach § 214 Abs. 1 Satz 1 Nrn.1 bis 3 BauGB beachtliche Verletzung der dort bezeichneten Verfahrens- und Formvorschriften,
- einer unter Berücksichtigung des § 214 Abs. 2 BauGB beachtliche Verletzung der Vorschriften über das Verhältnis des Bebauungsplanes und des Flächennutzungsplanes
- nach § 214 Abs. 3 Satz 2 BauGB beachtliche Mängel des Abwägungsvorgangs,
wenn sie nicht innerhalb von einem Jahr seit dieser Bekanntmachung schriftlich gegenüber der Gemeinde geltend gemacht worden ist. Bei der Geltendmachung ist der Sachverhalt, der die Verletzung oder den Mangel begründen soll, darzulegen.
Dies gilt nicht, wenn die Vorschriften über die Öffentlichkeit der Sitzung, die Genehmigung oder die Bekanntmachung der Bebauungsplanänderung verletzt worden sind oder der Bürgermeister dem Beschluss nach § 43 GemO wegen Gesetzwidrigkeit widersprochen hat, oder wenn innerhalb eines Jahres seit dieser Bekanntmachung die Rechtsaufsichtsbehörde den Beschluss beanstandet hat oder die Verletzung von Verfahrens- oder Formvorschriften gegenüber der Gemeinde unter Bezeichnung des Sachverhaltes, der die Verletzung begründen soll, schriftlich geltend gemacht worden ist.
Auf die Vorschriften des § 44 Abs. 3 Satz 1 und 2 BauGB über die Fälligkeit etwaiger Entschädigungsansprüche im Falle der in den §§ 39 – 42 BauGB bezeichneten Vermögensanteile, deren Leistung schriftlich beim Entschädigungspflichtigen zu beantragen ist, und des § 44 Abs. 4 BauGB über das Erlöschen von Entschädigungsansprüchen, wenn der Antrag nicht innerhalb der Frist von drei Jahren gestellt ist, wird hingewiesen.
Malsch, 07.05.2026
Markus Bechler, Bürgermeister
3. Änderung des Bebauungsplans “Industriegebiet III“ mit örtlichen Bauvorschriften - In-Kraft-Treten der Satzung
Der Gemeinderat Malsch hat in der öffentlichen Sitzung am 23.02.2021 gemäß § 10 Abs. 1 Baugesetzbuch (BauGB) und die mit dem Bebauungsplan aufgestellten örtlichen Bauvorschriften gemäß § 74 der Landesbauordnung (LBO) und § 4 der Gemeindeordnung (GemO) für Baden-Württemberg die 3. Änderung des Bebauungsplans "Industriegebiet III" mit örtlichen Bauvorschriften als Satzung beschlossen.
Der räumliche Geltungsbereich des Bebauungsplans und der örtlichen Bauvorschriften ist der beigefügten Darstellung zu entnehmen. Maßgebend ist der zeichnerische Teil des Bebauungsplans in der Fassung vom 24.10.2018.

Mit dieser Bekanntmachung tritt die 3. Änderung des Bebauungsplans "Industriegebiet III" und die örtlichen Bauvorschriften zum Bebauungsplan „Industriegebiet III“ gemäß § 10 Abs. 3 BauGB, § 74 Abs. 7 LBO in Kraft.
Der Bebauungsplan (textlicher und zeichnerischer Teil) und die örtlichen Bauvorschriften können einschließlich Begründung im Rathaus der Gemeinde Malsch, Hauptstr. 71, Zimmer 302, II.OG, während der üblichen Öffnungszeiten von jedermann eingesehen werden. Auf Verlangen wird über den Inhalt Auskunft gegeben.
Auf die Vorschriften des § 44 Abs. 3 Satz 1 und 2 BauGB über die Fälligkeit etwaiger Entschädigungsansprüche im Falle der in den §§ 39 – 42 BauGB bezeichneten Vermögensanteile, deren Leistung schriftlich beim Entschädigungspflichtigen zu beantragen ist, und des § 44 Abs. 4 BauGB über das Erlöschen von Entschädigungsansprüchen, wenn der Antrag nicht innerhalb der Frist von drei Jahren, nach Ablauf des Kalenderjahres des Eintritts des Vermögensnachteils, gestellt ist, wird hingewiesen.
Unbeachtlich sind gemäß § 215 Abs. 1 bis 3 BauGB
- eine nach § 214 Abs. 1 Satz 1 Nrn.1 bis 3 BauGB beachtliche Verletzung der dort bezeichneten Verfahrens- und Formvorschriften,
- einer unter Berücksichtigung des § 214 Abs. 2 BauGB beachtliche Verletzung der Vorschriften über das Verhältnis des Bebauungsplanes und des Flächennutzungsplanes
- nach § 214 Abs. 3 Satz 2 BauGB beachtliche Mängel des Abwägungsvorgangs,
wenn sie nicht innerhalb eines Jahres seit dieser Bekanntmachung schriftlich gegenüber der Gemeinde geltend gemacht worden sind. Bei der Geltendmachung ist der Sachverhalt, der die Verletzung oder den Mangel begründen soll, darzulegen.
Nach § 4 Abs. 4 Gemeindeordnung für Baden-Württemberg gilt die Satzung – sofern sie unter der Verletzung von Verfahrens- und Formvorschriften der Gemeindeordnung oder auf Grund der Gemeindeordnung ergangenen Bestimmungen zustande gekommen sind – ein Jahr nach dieser Bekanntmachung als von Anfang an gültig zustande gekommen.
Dies gilt nicht, wenn
- die Vorschriften über die Öffentlichkeit der Sitzung, die Genehmigung oder die Bekanntmachung der Satzung verletzt worden sind.
- der Bürgermeister dem Beschluss nach § 43 GemO wegen Gesetzwidrigkeit widersprochen hat und wenn innerhalb eines Jahres seit dieser Bekanntmachung die Rechtsaufsichtsbehörde den Beschluss beanstandet hat oder die Verletzung von Verfahrens- oder Formvorschriften gegenüber der Gemeinde unter Bezeichnung des Sachverhaltes, der die Verletzung begründen soll, schriftlich geltend gemacht worden ist.
Werden örtliche Bauvorschriften zusammen mit dem Bebauungsplan beschlossen, richtet sich das Verfahren für ihren Erlass in vollem Umfang nach den für den Bebauungsplan geltenden Vorschriften.
Dies gilt für die Änderung, Ergänzung und Aufhebung entsprechend (§ 74 Abs. 7 LBO).
Gemeinde Malsch, 26.03.2026
Markus Bechler
Bürgermeister
5. Änderung des Flächennutzungsplans 2015 im Bereich Glasersee der Gemeinde Malsch - Beschluss der Frühzeitigen Beteiligung nach § 3 Abs. 1 BauGB
Der Gemeinderat der Gemeinde Malsch hat am 16.12.2025 in öffentlicher Sitzung den Vorentwurf der 5. Änderung des Flächennutzungsplans gebilligt und beschlossen, die Frühzeitige Öffentlichkeitsbeteiligung sowie eine Frühzeitige Unterrichtung der Behörden und Träger öffentlicher Belange nach §§ 3 Abs. 1 und 4 Abs. 1 Baugesetzbuch (BauGB) durchzuführen.
Für den Geltungsbereich ist der Plan-Vorentwurf vom 20.11.2025 maßgebend. Siehe unten.
Der Bereich der 5. Änderung des Flächennutzungsplans umfasst den im nachfolgenden Ausschnitt dargestellten Bereich.
Ziel und Zweck der Planung
Mit der Aufstellung der 5. Änderung des Flächennutzungsplans sollen die planungsrechtlichen Voraussetzungen für die Errichtung und den Betrieb einer schwimmenden PV-Anlage auf dem Glasersee geschaffen werden. Die hierdurch gewonnene regenerative Energie leistet einen Beitrag zur Klimawende durch Nutzung des ausgekiesten Teils des Glasersees. Zusätzliche landwirtschaftliche Flächen werden dadurch nicht beansprucht.
Parallel zur Aufstellung der 5. Änderung des Flächennutzungsplans erfolgt die Aufstellung des Bebauungsplans „Schwimmende PV-Anlage Glasersee“.
Veröffentlichung des Planvorentwurfes im Internet
Der Vorentwurf der 5. Änderung des Flächennutzungsplans mit Begründung in der Fassung vom 20.11.2025 einschließlich Untersuchungskonzept zu den potenziellen Auswirkungen des Vorhabens auf die Umwelt in der Fassung vom 11.11.2024 werden in der Zeit vom 23.03.2026 bis einschließlich 23.04.2026 im Internet unter https://www.malsch.de/bauen-und-umwelt/bebauungsplanverfahren veröffentlicht. Die Planunterlagen sind auch über das zentrale Internetportal des Landes Baden-Württemberg unter https://www.uvp-verbund.de/kartendienste zugänglich.
Während der Dauer der Veröffentlichungsfrist können Stellungnahmen abgegeben werden. Die Stellungnahmen sollen elektronisch übermittelt werden; sie können aber auch auf anderem Weg abgegeben werden.
Darüber hinaus liegen die Unterlagen zum Vorentwurf der 5. Änderung des Flächennutzungsplans im Rathaus Malsch, Hauptstraße 71, 76316 Malsch, während den üblichen Dienstzeiten, zu jedermanns Einsicht öffentlich aus.
Da das Ergebnis der Behandlung der Anregungen mitgeteilt wird, ist die Angabe der Mailadresse, alternativ auch der Anschrift des Verfassers zweckmäßig.
Gemäß § 4 a Absatz 6 BauGB können nicht fristgerecht abgegebene Stellungnahmen bei der Beschlussfassung über die 5. Änderung des Flächennutzungsplans unberücksichtigt bleiben.
Malsch, 19.03.2026
Gez. Markus Bechler
Bürgermeister
Bebauungsplan "Schwimmende Photovoltaikanlage Glasersee" der Gemeinde Malsch - Beschluss der Frühzeitigen Beteiligung nach § 3 Abs. 1 BauGB
Der Gemeinderat der Gemeinde Malsch hat am 16.12.2025 in öffentlicher Sitzung den Bebauungsplan-Vorentwurf gebilligt und beschlossen und die Frühzeitige Öffentlichkeitsbeteiligung sowie eine Frühzeitige Unterrichtung der Behörden und Träger öffentlicher Belange nach §§ 3 Abs. 1 und 4 Abs. 1 Baugesetzbuch (BauGB) durchzuführen.
Für den Geltungsbereich ist der Plan-Vorentwurf vom 20.11.2025 maßgebend. Siehe unten.
Der Geltungsbereich des Bebauungsplanes „Schwimmende PV-Anlage Glasersee“ umfasst den im nachfolgenden Lageplan dargestellten Bereich.
Ziel und Zweck der Planung
Mit der Aufstellung des Bebauungsplans sollen die planungsrechtlichen Voraussetzungen für die Errichtung und den Betrieb einer schwimmenden PV-Anlage auf dem Glasersee geschaffen werden. Die hierdurch gewonnene regenerative Energie leistet einen Beitrag zur Klimawende durch Nutzung des ausgekiesten Teils des Glasersees. Zusätzliche landwirtschaftliche Flächen werden dadurch nicht beansprucht.
Da PV-Anlagen im planungsrechtlichen Außenbereich grundsätzlich nicht als privilegierte bauliche Anlagen zulässig sind, erfolgt parallel zur Aufstellung des Bebauungsplans die 5. Änderung des Flächennutzungsplans der Gemeinde Malsch. So gilt der Bebauungsplan aus dem Flächennutzungsplan entwickelt.
Veröffentlichung des Planvorentwurfes im Internet
Der Vorentwurf des Bebauungsplanes „Schwimmende PV-Anlage Glasersee“ mit Textlichen Festsetzungen und Begründung in der Fassung vom 20.11.2025 einschließlich Untersuchungskonzept zu den potenziellen Auswirkungen des Vorhabens auf die Umwelt in der Fassung vom 11.11.2024 werden in der Zeit vom 23.03.2026 bis einschließlich 23.04.2026 im Internet unter https://www.malsch.de/bauen-und-umwelt/bebauungsplanverfahren veröffentlicht. Die Planunterlagen sind auch über das zentrale Internetportal des Landes Baden-Württemberg unter https://www.uvp-verbund.de/kartendienste zugänglich.
während der Dauer der Veröffentlichungsfrist können Stellungnahmen abgegeben werden. Die Stellungnahmen sollen elektronisch übermittelt werden; sie können aber auch auf anderem Weg abgegeben werden.
Darüber hinaus liegen die Unterlagen zum Bebauungsplan-Vorentwurf im Rathaus Malsch, Hauptstraße 71, 76316 Malsch, während den üblichen Dienstzeiten, zu jedermanns Einsicht öffentlich aus.
Da das Ergebnis der Behandlung der Anregungen mitgeteilt wird, ist die Angabe der Mailadresse, alternativ auch der Anschrift des Verfassers zweckmäßig.
Gemäß § 4 a Absatz 6 BauGB können nicht fristgerecht abgegebene Stellungnahmen bei der Beschlussfassung über den Bebauungsplan unberücksichtigt bleiben.
Malsch, 19.03.2026
Gez. Markus Bechler
Bürgermeister
3. Änderung des Flächennutzungsplans der Gemeinde Malsch zur Anweisung einer Fläche für einen Solarpark (ehemalige Deponie Stützel)
Das Landratsamt Karlsruhe hat die vom Gemeinderat am 21.02.2017 in öffentlicher Sitzung beschlossene 3. Änderung des Flächennutzungsplans mit Erlass vom 04.08.2020 Nr. 16900679/0004 aufgrund von § 6 Abs. 1 BauGB genehmigt.
Die 3. Änderung des Flächennutzungsplans wird mit dieser Bekanntmachung wirksam.
Die Flächennutzungsplanänderung kann einschließlich der Begründung mit Umweltbericht im Rathaus der Gemeinde Malsch, Hauptstr. 71, Zimmer 312, II.OG, während der üblichen Öffnungszeiten eingesehen werden. Auf Verlangen wird über den Inhalt Auskunft gegeben.
Hinweise:
- eine nach § 214 Abs. 1 Satz 1 Nrn.1 bis 3 BauGB beachtliche Verletzung der dort bezeichneten Verfahrens- und Formvorschriften,
- einer unter Berücksichtigung des § 214 Abs. 2 BauGB beachtliche Verletzung der Vorschriften über das Verhältnis des Bebauungsplanes und des Flächennutzungsplanes
- nach § 214 Abs. 3 Satz 2 BauGB beachtliche Mängel des Abwägungsvorgangs,
wenn sie nicht innerhalb von einem Jahr seit dieser Bekanntmachung schriftlich gegenüber der Gemeinde geltend gemacht worden ist. Bei der Geltendmachung ist der Sachverhalt, der die Verletzung oder den Mangel begründen soll, darzulegen.
Dies gilt nicht, wenn die Vorschriften über die Öffentlichkeit der Sitzung, die Genehmigung oder die Bekanntmachung der Bebauungsplanänderung verletzt worden sind oder der Bürgermeister dem Beschluss nach § 43 GemO wegen Gesetzwidrigkeit widersprochen hat, oder denn innerhalb eines Jahres seit dieser Bekanntmachung die Rechtsaufsichtsbehörde den Beschluss beanstandet hat oder die Verletzung von Verfahrens- oder Formvorschriften gegenüber der Gemeinde unter Bezeichnung des Sachverhaltes, der die Verletzung begründen soll, schriftlich geltend gemacht worden ist.
Auf die Vorschriften des § 44 Abs. 3 Satz 1 und 2 BauGB über die Fälligkeit etwaiger Entschädigungsansprüche im Falle der in den §§ 39 – 42 BauGB bezeichneten Vermögensanteile, deren Leistung schriftlich beim Entschädigungspflichtigen zu beantragen ist, und des § 44 Abs. 4 BauGB über das Erlöschen von Entschädigungsansprüchen, wenn der Antrag nicht innerhalb der Frist von drei Jahren gestellt ist, wird hingewiesen.
Malsch, den 12.03.2026
Markus Bechler
Bürgermeister
2. Änderung des Flächennutzungsplans der Gemeinde Malsch für die Teilflächen „ehemalige Papierfabrik Malsch“, „Östliche L608“ und „Neumalsch“
Das Landratsamt Karlsruhe hat die vom Gemeinderat am 15.12.2016 in öffentlicher Sitzung beschlossene 2. Änderung des Flächennutzungsplans mit Erlass vom 04.08.2020 Nr. 16900400/007 aufgrund von § 6 Abs. 1 BauGB genehmigt.
Die 2. Änderung des Flächennutzungsplans wird mit dieser Bekanntmachung wirksam.
Die Flächennutzungsplanänderung kann einschließlich der Begründung mit Umweltbericht im Rathaus der Gemeinde Malsch, Hauptstr. 71, Zimmer 312, II.OG, während der üblichen Öffnungszeiten eingesehen werden. Auf Verlangen wird über den Inhalt Auskunft gegeben.
Hinweise:
- eine nach § 214 Abs. 1 Satz 1 Nrn.1 bis 3 BauGB beachtliche Verletzung der dort bezeichneten Verfahrens- und Formvorschriften,
- einer unter Berücksichtigung des § 214 Abs. 2 BauGB beachtliche Verletzung der Vorschriften über das Verhältnis des Bebauungsplanes und des Flächennutzungsplanes
- nach § 214 Abs. 3 Satz 2 BauGB beachtliche Mängel des Abwägungsvorgangs,
wenn sie nicht innerhalb von einem Jahr seit dieser Bekanntmachung schriftlich gegenüber der Gemeinde geltend gemacht worden ist. Bei der Geltendmachung ist der Sachverhalt, der die Verletzung oder den Mangel begründen soll, darzulegen.
Dies gilt nicht, wenn die Vorschriften über die Öffentlichkeit der Sitzung, die Genehmigung oder die Bekanntmachung der Bebauungsplanänderung verletzt worden sind oder der Bürgermeister dem Beschluss nach § 43 GemO wegen Gesetzwidrigkeit widersprochen hat, oder denn innerhalb eines Jahres seit dieser Bekanntmachung die Rechtsaufsichtsbehörde den Beschluss beanstandet hat oder die Verletzung von Verfahrens- oder Formvorschriften gegenüber der Gemeinde unter Bezeichnung des Sachverhaltes, der die Verletzung begründen soll, schriftlich geltend gemacht worden ist.
Auf die Vorschriften des § 44 Abs. 3 Satz 1 und 2 BauGB über die Fälligkeit etwaiger Entschädigungsansprüche im Falle der in den §§ 39 – 42 BauGB bezeichneten Vermögensanteile, deren Leistung schriftlich beim Entschädigungspflichtigen zu beantragen ist, und des § 44 Abs. 4 BauGB über das Erlöschen von Entschädigungsansprüchen, wenn der Antrag nicht innerhalb der Frist von drei Jahren gestellt ist, wird hingewiesen.
Malsch, den 12.03.2026
Gez. Markus Bechler
Bürgermeister
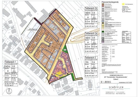
Bebauungsplan „Florianstraße / Neuwiesenstraße“mit örtlichen Bauvorschriften - Aufstellung im beschleunigten Verfahren nach § 13a BauGB - erneute Veröffentlichung im Internet gemäß § 3 Abs. 2 BauGB in Verbindung mit § 4a Abs.3 BauGB
Der Gemeinderat der Gemeinde Malsch hat in öffentlicher Sitzung am 24.02.2026 den überarbeiteten Entwurf des Bebauungsplans „Florianstraße / Neuwiesenstraße“ gebilligt und die erneute Beteiligung der Öffentlichkeit gemäß § 3 Abs. 2 BauGB sowie der Behörden und sonstigen Träger Öffentlicher Belange gemäß § 4 Abs. 2 BauGB in Verbindung mit § 4a(3) BauGB beschlossen.
Die erneute Beteiligung der Öffentlichkeit nach § 3(2) BauGB erfolgt durch Veröffentlichung der Planunterlagen im Internet auf der Homepage der Gemeinde Malsch unter www.malsch.de (Rubrik: Bauen/Umwelt und dort Bebauungsplanverfahren) vom einschließlich 16.03.2026 bis einschließlich 16.04.2026. Die Planunterlagen werden auch im Rathaus Malsch, Hauptstraße 71, 76316 Malsch während den üblichen Sprechstunden, Zimmer 312 ausgelegt und können dort eingesehen werden.
Während der Dauer der o.g. Veröffentlichungsfrist können Stellungnahmen vorgebracht werden. Sie können mündlich oder schriftlich mitgeteilt oder zur Niederschrift gegeben werden. Darüber hinaus können die Stellungnahmen auch per Post: Gemeinde Malsch, Bauverwaltung, Hauptstr. 71, 76316 Malsch oder per E-Mail: bauen@malsch.de eingereicht werden.
Gemäß § 3 Abs. 2 BauGB und § 4 a Abs. 5 BauGB wird darauf hingewiesen, dass Stellungnahmen, die im Verfahren der Öffentlichkeitsbeteiligung nicht fristgerecht abgegeben worden sind, bei der Beschlussfassung über den Bebauungsplan unberücksichtigt bleiben können.
Da das Ergebnis der Behandlung der Anregungen mitgeteilt wird, ist die Angabe der Anschrift des Verfassers erforderlich. Im Zusammenhang mit dem Datenschutz weisen wir ausdrücklich darauf hin, dass ein Bebauungsplanverfahren ein öffentliches Verfahren ist und daher in der Regel alle dazu eingehenden Stellungnahmen in öffentlichen Sitzungen beraten und entschieden werden, sofern sich nicht aus der Art der Einwände oder der betroffenen Person ausdrückliche oder offensichtliche Einschränkungen ergeben. Soll eine Stellungnahme nur anonym behandelt werden, ist dies auf derselben eindeutig zu vermerken.
- Textteil des Bebauungsplans vom 10.02.2026 (redaktionelle Änderungen/Korrekturen 04.03.2026)
- Zeichnerischer Teil des Bebauungsplans (Plan) vom 04.02.2026 sowie folgende umweltbezogene Informationen als gesonderte Fachgutachten:
- Wasserhaushaltsbilanz vom 03.02.2026
- Schalltechnische Untersuchung von Februar 2025
- Aktualisierung Artenschutzrechtliche Untersuchung vom 19.08.2024
- Geotechnisches und Umwelttechnisches Gutachten vom 27.01.2017
- Landratsamt Karlsruhe / Amt für Umwelt und Arbeitsschutz, Sachgebiet Altlasten/Bodenschutz–Gewässer–Abwasser 15.02.2024: Hinweise zur Entwässerungsplanung / Niederschlagswasser, Vorlage einer Wasserhaushaltsbilanz
- Landratsamt Karlsruhe / Amt für Umwelt und Arbeitsschutz – Immissionsschutz 15.02.2024: Anregungen zum Immissionsschutz bzgl. Bewertung der Lärmemissionen Bauhof und Feuerwehr
- Landratsamt Karlsruhe / Amt für Umwelt und Arbeitsschutz-Naturschutz 15.02.2024: Anregungen zur Artenschutzuntersuchung und Maßnahmen zum Artenschutz, Hinweise bzgl. des angrenzenden FFH-Gebietes „Wälder und Wiesen bei Malsch“
- Landesamt für Geologie, Rohstoffe und Bergbau 08.02.2024: Hinweise zur Geotechnik, zum Bodenschutz, auf die Lage des Plangebiets in Zone III B des rechtskräftigen Wasserschutzgebiets "Gemeinde Durmersheim, Winkelsloh"
- Fraktion BfU/Grüne 12.02.2026: Anregungen zu planungsrechtlichen Festsetzungen und örtlichen Bauvorschriften bzgl. der Begrünung und Nutzung der unbebauten Grundstücksflächen
Räumlicher Geltungsbereich:
Der räumliche Geltungsbereich des Bebauungsplanes ergibt sich aus dem folgendem Kartenausschnitt (nicht maßstäblich):
Maßgebend ist der Entwurf des Bebauungsplanes „Florianstraße / Neuwiesenstraße“ in der Fassung vom 04.02.2026.
Ziele und Zwecke der Planung:
Ein wesentliches Planungsziel der Gemeinde Malsch besteht in der Sicherung und Stärkung der innerörtlichen Wohnfunktion unter Berücksichtigung vorhandener Bau- und Nutzungsstrukturen. Im Bereich zwischen Bauhof, Neuwiesen- und Florianstraße sieht die Gemeinde Malsch die Möglichkeit, die dort bereits vorhandene Bebauung zu ergänzen und so durch eine innerörtliche Nachverdichtung zusätzlichen Wohnraum zu gewinnen.
Die Flächen sind im FNP weitgehend als Baufläche vorgesehen, liegen aber nicht im Geltungsbereich eines bestehenden Bebauungsplanes. Zur Sicherung der städtebaulichen Entwicklung und Ordnung ist für die bauliche Entwicklung in diesem Bereich die Aufstellung des Bebauungsplanes erforderlich.
Verfahren:
Das Bebauungsplanaufstellungsverfahren erfolgt im beschleunigten Verfahren gem. § 13a BauGB für Bebauungspläne der Innenentwicklung.Von der Erstellung eines Umweltberichts zur Bebauungsplanänderung nach § 2a BauGB, von der Angabe nach § 3 Abs. 2 BauGB welche Arten umweltbezogener Informationen verfügbar sind, von der zusammenfassenden Erklärung nach § 10a Abs. 4 BauGB und von der Überwachung („Monitoring“) nach § 4c BauGB wird ebenfalls abgesehen (§ 13a Abs. 2 Nr. 1 BauGB, § 13 Abs. 3 BauGB).Inhaltlich sind jedoch die artenschutzrechtlichen Belange berücksichtigt worden.
Den Beschluss zur Aufstellung des Bebauungsplans „Florianstraße / Neuwiesenstraße“ hat der Gemeinderat Malsch bereits am 28.02.2012 gefasst.Im Zeitraum November / Dezember 2015 wurde eine (freiwillige) frühzeitige Beteiligung der Öffentlichkeit, der Behörden und sonstigen Träger öffentlicher Belange durchgeführt. Gegenüber dem damaligen Vorentwurf wurde der Entwurf 2023 grundlegend überarbeitet. Anfang 2024 wurde die Beteiligung der Öffentlichkeit, der Behörden und sonstiger Träger öffentlicher Belange nach § 3(2) und § 4(2) BauGB durchgeführt. Aus dieser Beteiligung und auch aus der weiter konkretisierten Planung ergaben sich weitere Änderungen im Bebauungsplan und der zugehörigen Fachgutachten.
Malsch, den 12.03.2026
gez. Markus Bechler
Bürgermeister
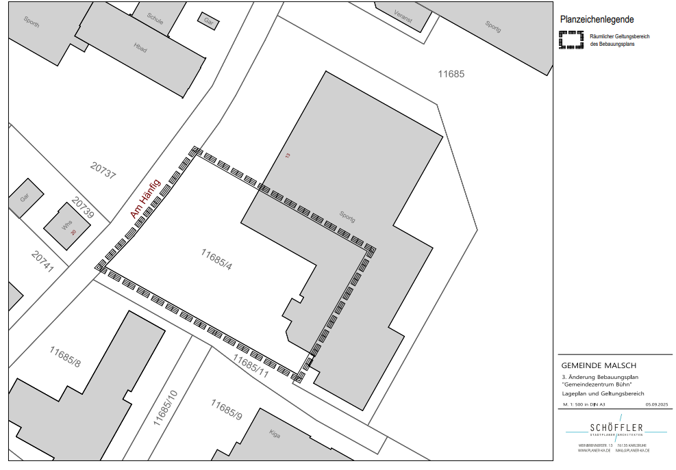
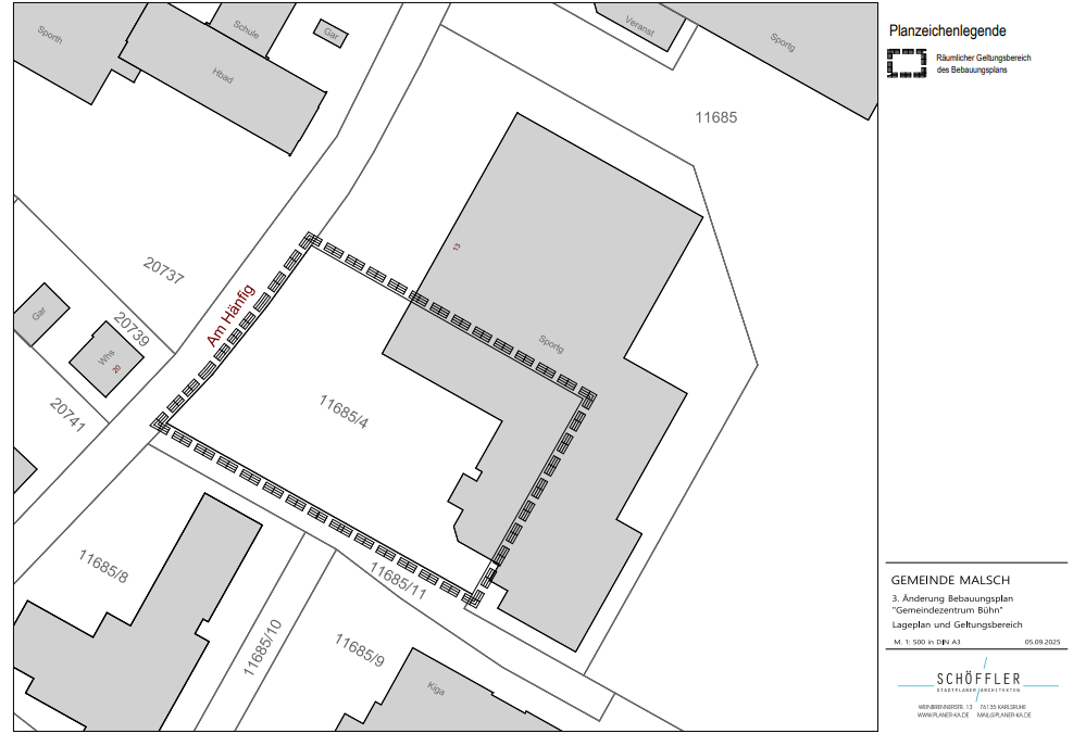
3. Änderung des Bebauungsplans „Gemeindezentrum Bühn“ im beschleunigten Verfahren nach § 13a BauGB - Beteiligung der Öffentlichkeit
Der Gemeinderat der Gemeinde Malsch hat am 30.09.2025 aufgrund von § 2 Abs. 1 Baugesetzbuch (BauGB) in seiner öffentlichen Sitzung beschlossen, die 3. Änderung des Bebauungsplans „Gemeindezentrum Bühn aufzustellen.
Am 24.02.2026 hat der Gemeinderat der Gemeinde Malsch in öffentlicher Sitzung zugleich die Beteiligung der Öffentlichkeit nach § 3 Abs. 2 BauGB beschlossen.
Diese Planunterlagen können in der Zeit vom 09.03.2026 bis einschließlich 07.04.2026 während der üblichen Sprechstunden im Rathaus Malsch, Hauptstraße 71, 76316 Malsch, im 2. OG bei Zimmer 312 eingesehen werden. Zusätzlich werden während diesem Zeitraum die ortsübliche Bekanntmachung und die auszulegenden Unterlagen gemäß § 4a Abs. 4 S. 1 BauGB in das Internet eingestellt. Die Bekanntmachung und die Unterlagen können auf der Homepage der Gemeinde Malsch unter www.malsch.de eingesehen werden.
Während dieser Auslegungsfrist können Anregungen und Stellungnahmen vorgebracht werden. Sie können mündlich oder schriftlich mitgeteilt oder zur Niederschrift gegeben werden.
Ziel und Zweck
Auf dem Gelände soll ein dauerhafter Stützpunkt für eine Rettungswache entstehen. Dies soll mit einem gemischt genutzten Gebäude mit zusätzlichen Wohnungen realisiert werden. Der Rechtsgültige Bebauungsplan aus dem Jahr 1974 sieht an dieser Stelle noch ein Schul- und Sportstättenbau vor und muss deshalb geändert werden.
Malsch, 05.03.2026
Gez. Markus Bechler, Bürgermeister
„Am ehemaligen Bahnübergang -Teilbereich- ehemalige Tankstelle Sézanner Straße“ - Inkrafttreten der Satzung
Der Gemeinderat Malsch hat in seiner öffentlichen Sitzung am 16.12.2025 gemäß § 10 Abs. 1 BauGB in Verbindung mit § 74 der Landesbauordnung (LBO) und § 4 der Gemeindeordnung (GemO) für Baden-Württemberg die „Am ehemaligen Bahnübergang -Teilbereich- ehemalige Tankstelle Sézanner Straße“ als Satzung beschlossen.
Mit dieser Bekanntmachung tritt „Am ehemaligen Bahnübergang -Teilbereich- ehemalige Tankstelle Sézanner Straße“ gemäß § 10 Abs. 3 BauGB in Kraft.
Die Bebauungsplanänderung kann auf Verlangen im Rathaus der Gemeinde Malsch, Hauptstr. 71, II.OG, Fachbereich Planen und Bauen während der üblichen Dienststunden von jedermann eingesehen werden. Auf Verlangen wird über den Inhalt Auskunft gegeben.
Hinweise:
Unbeachtlich werden gemäß §215 Abs. 1 BauGB
- eine nach § 214 Abs. 1 Satz 1 Nrn.1 bis 3 BauGB beachtliche Verletzung der dort bezeichneten Verfahrens- und Formvorschriften,
- einer unter Berücksichtigung des § 214 Abs. 2 BauGB beachtliche Verletzung der Vorschriften über das Verhältnis des Bebauungsplanes und des Flächennutzungsplanes
- nach § 214 Abs. 3 Satz 2 BauGB beachtliche Mängel des Abwägungsvorgangs,
wenn sie nicht innerhalb von einem Jahr seit dieser Bekanntmachung schriftlich gegenüber der Gemeinde geltend gemacht worden ist. Bei der Geltendmachung ist der Sachverhalt, der die Verletzung oder den Mangel begründen soll, darzulegen.
Dies gilt nicht, wenn die Vorschriften über die Öffentlichkeit der Sitzung, die Genehmigung oder die Bekanntmachung der Bebauungsplanänderung verletzt worden sind oder der Bürgermeister dem Beschluss nach § 43 GemO wegen Gesetzwidrigkeit widersprochen hat, oder wenn innerhalb eines Jahres seit dieser Bekanntmachung die Rechtsaufsichtsbehörde den Beschluss beanstandet hat oder die Verletzung von Verfahrens- oder Formvorschriften gegenüber der Gemeinde unter Bezeichnung des Sachverhaltes, der die Verletzung begründen soll, schriftlich geltend gemacht worden ist.
Auf die Vorschriften des § 44 Abs. 3 Satz 1 und 2 BauGB über die Fälligkeit etwaiger Entschädigungsansprüche im Falle der in den §§ 39 – 42 BauGB bezeichneten Vermögensanteile, deren Leistung schriftlich beim Entschädigungspflichtigen zu beantragen ist, und des § 44 Abs. 4 BauGB über das Erlöschen von Entschädigungsansprüchen, wenn der Antrag nicht innerhalb der Frist von drei Jahren gestellt ist, wird hingewiesen.
Malsch, 05.03.2026
Gez. Markus Bechler, Bürgermeister
Bebauungsplan „Florianstraße / Neuwiesenstraße“ - Satzung über die beabsichtigte Veränderungssperre
Auf Grund von § 14 Baugesetzbuch (BauGB) i.V. mit § 4 Gemeindeordnung für Baden-Württemberg (GemO), alle in der jeweils gültigen Fassung hat der Gemeinderat Malsch am 27.01.2026 in öffentlicher Sitzung folgende Veränderungssperre als Satzung beschlossen:
§ 1 Anordnung der Veränderungssperre
Zur Sicherung der Planung im Geltungsbereich des beabsichtigten Bebauungsplanes „Florianstraße / Neuwiesenstraße“ wird eine Veränderungssperre angeordnet.
§ 2 Räumlicher Geltungsbereich der Veränderungssperre
(1) Der räumliche Geltungsbereich der Veränderungssperre ist durch die jeweiligen Grenzen des räumlichen Geltungsbereiches des beabsichtigten Bebauungsplanes „Florianstraße / Neuwiesenstraße“ begrenzt.
(2) Alle innerhalb des beabsichtigten Bebauungsplanes nach (1) liegenden Grundstücke lt. Lageplan vom 10.07.2025 werden von dieser Veränderungssperre erfasst.
(3) Für den räumlichen Geltungsbereich der Veränderungssperre ist der Übersichtsplan vom 10.07.2025 maßgebend.
§ 3 Inhalt und Rechtswirkung der Veränderungssperre
(1) Im räumlichen Geltungsbereich der Veränderungssperre dürfen:
Vorhaben im Sinne des § 29 BauGB nicht durchgeführt oder bauliche Anlagen nicht beseitigt werden; keine erheblichen oder wesentlich wertsteigernden Veränderungen von Grundstücken und baulichen Anlagen, deren Veränderung nicht genehmigungs-, zustimmungs- oder anzeigenpflichtig ist, vorgenommen werden.
(2) Vorhaben, die vor dem In-Kraft-Treten der Veränderungssperre baurechtlich genehmigt worden sind, Vorhaben, von denen die Gemeinde nach Maßgabe des Bauordnungsrechts Kenntnis erlangt hat und mit deren Ausführung vor dem In-Kraft-Treten der Veränderungssperre hätte begonnen werden dürfen, sowie Unterhaltungsarbeiten und die Fortführung einer bisher ausgeübten Nutzung werden von der Veränderungssperre nicht berührt.
(3) In Anwendung von § 14 Abs. 2 BauGB kann von der Veränderungssperre eine Ausnahme zugelassen werden, wenn keine überwiegenden öffentlichen Belange entgegenstehen. Die Entscheidung hierüber trifft die Baugenehmigungsbehörde im Einvernehmen mit der Gemeinde.
§ 4 In – Kraft – Treten
Die Satzung über die Anordnung der Veränderungssperre tritt mit der öffentlichen Bekanntmachung in Kraft (§ 16 Abs. 2 BauGB).
§ 5 Geltungsdauer
Für die Geltungsdauer der Veränderungssperre ist § 17 BauGB maßgebend.
Malsch, 29.01.2026
Markus Bechler
Bürgermeister
6. Änderung zum Bebauungsplan "Industriegebiet I & II" - Inkrafttreten
Der Gemeinderat Malsch hat in seiner öffentlichen Sitzung am 21.10.2025 gemäß § 10 Abs. 1 BauGB in Verbindung mit § 74 der Landesbauordnung (LBO) und § 4 der Gemeindeordnung (GemO) für Baden-Württemberg die die 6. Änderung des Bebauungsplans Industriegebiet I&II als Satzung beschlossen. Die 6. Änderung des Bebauungsplans ‚Industriegebiet I + II‘ betrifft mit Änderung der Baugrenzen nur den zeichnerischen Teil des ursprünglichen Bebauungsplans in der Fassung der 5. Änderung im Geltungsbereich der Bebauungsplan-Änderung gemäß des zeichnerischen Teil A. Die Begründung zur 6. Änderung geht nur auf Anlass, Inhalte und Rahmenbedingungen der Bebauungsplan Änderung ein. Die planungsrechtlichen Festsetzungen und örtlichen Bauvorschriften des Bebauungsplans ‚Industriegebiet I + II‘ in der Fassung der 5. Änderung bleiben unverändert in Kraft.
Die 6. Änderung des Bebauungsplans ‚Industriegebiet I + II‘ betrifft mit Änderung der Baugrenzen nur den zeichnerischen Teil des ursprünglichen Bebauungsplans in der Fassung der 5. Änderung im Geltungsbereich der Bebauungsplan-Änderung gemäß des zeichnerischen Teil A. Die Begründung zur 6. Änderung geht nur auf Anlass, Inhalte und Rahmenbedingungen der Bebauungsplan Änderung ein. Die planungsrechtlichen Festsetzungen und örtlichen Bauvorschriften des Bebauungsplans ‚Industriegebiet I + II‘ in der Fassung der 5. Änderung bleiben unverändert in Kraft.
Mit dieser Bekanntmachung tritt die 6. Änderung zum Bebauungsplan " Industriegebiet I & II" gemäß § 10 Abs. 3 BauGB in Kraft.
Die Bebauungsplanänderung kann auf Verlangen im Rathaus der Gemeinde Malsch, Hauptstr. 71, II.OG, Fachbereich Planen und Bauen während der üblichen Dienststunden von jedermann eingesehen werden. Auf Verlangen wird über den Inhalt Auskunft gegeben.
Hinweise:
- eine nach § 214 Abs. 1 Satz 1 Nrn.1 bis 3 BauGB beachtliche Verletzung der dort bezeichneten Verfahrens- und Formvorschriften,
- einer unter Berücksichtigung des § 214 Abs. 2 BauGB beachtliche Verletzung der Vorschriften über das Verhältnis des Bebauungsplanes und des Flächennutzungsplanes
- nach § 214 Abs. 3 Satz 2 BauGB beachtliche Mängel des Abwägungsvorgangs,
wenn sie nicht innerhalb von einem Jahr seit dieser Bekanntmachung schriftlich gegenüber der Gemeinde geltend gemacht worden ist. Bei der Geltendmachung ist der Sachverhalt, der die Verletzung oder den Mangel begründen soll, darzulegen.
Dies gilt nicht, wenn die Vorschriften über die Öffentlichkeit der Sitzung, die Genehmigung oder die Bekanntmachung der Bebauungsplanänderung verletzt worden sind oder der Bürgermeister dem Beschluss nach § 43 GemO wegen Gesetzwidrigkeit widersprochen hat, oder wenn innerhalb eines Jahres seit dieser Bekanntmachung die Rechtsaufsichtsbehörde den Beschluss beanstandet hat oder die Verletzung von Verfahrens- oder Formvorschriften gegenüber der Gemeinde unter Bezeichnung des Sachverhaltes, der die Verletzung begründen soll, schriftlich geltend gemacht worden ist.
Auf die Vorschriften des § 44 Abs. 3 Satz 1 und 2 BauGB über die Fälligkeit etwaiger Entschädigungsansprüche im Falle der in den §§ 39 – 42 BauGB bezeichneten Vermögensanteile, deren Leistung schriftlich beim Entschädigungspflichtigen zu beantragen ist, und des § 44 Abs. 4 BauGB über das Erlöschen von Entschädigungsansprüchen, wenn der Antrag nicht innerhalb der Frist von drei Jahren gestellt ist, wird hingewiesen.
3. Änderung des Bebauungsplans „Gemeindezentrum-Bühn“ -Aufstellungsbeschluss
Der Gemeinderat der Gemeinde Malsch hat in seiner öffentlichen Sitzung am 30.09.2025 gemäß § 2 Abs. 1 BauGB, den Aufstellungsbeschluss für die 3. Änderung des Bebauungsplans „Gemeindezentrum-Bühn“ gefasst.
Die Änderungen des Bebauungsplans ergeben sich aus dem Lageplan und Geltungsbereich, der Bestandteil des Beschlusses ist.
Die Abgrenzung des räumlichen Geltungsbereiches ist im nachfolgenden Übersichtsplan dargestellt.
Ziele und Zwecke der Planung:
Auf dem Gelände soll ein dauerhafter Stützpunkt für eine Rettungswache entstehen. Dies soll mit einem gemischt genutzten Gebäude mit zusätzlichen Wohnungen realisiert werden. Der Rechtsgültige Bebauungsplan aus dem Jahr 1974 sieht an dieser Stelle noch einen Schul- und Sportstättenbau vor und muss deshalb geändert werden.
Malsch, 09.10.2025
gez. Markus Bechler
Bürgermeister
6. Änderung, Bebauungsplan Industriegebiet I + II‘ gem. § 3 Abs. 2 BauGB
Ziele und Zweck der Planung
Das Industriegebiet Malsch, das sich im Norden der Ortslage Malsch zwischen Bahn und Autobahn erstreckt, wurde in mehreren Bauabschnitten erschlossen. Der Änderungsbereich zur 6. Änderung des Bebauungsplans ‚Industriegebiet I+II‘ liegt an der Nahtstelle der Bebauungspläne ‚Industriegebiet I+II‘ und ‚Industriegebiet IV‘.
Bei Aufstellung des Bebauungsplans ‚Industriegebiet IV‘ wurde eine Teilfläche des Flurstücks Nr. 22475 einbezogen, um eine ausreichend breite Zufahrt zu den westlich angrenzenden Gewerbeflächen, die durch den Bebauungsplan ‚Industriegebiet IV‘ ermöglicht wurden, herstellen zu können. Der Bebauungsplan ‚Industriegebiet IV‘ wurde am 23.02.2021 als Satzung beschlossen und mit der öffentlichen Bekanntmachung am 19.12.2024 rechtskräftig – nach Genehmigung und Bekanntmachung der zugehörigen Änderung des Flächennutzungsplans.
Nun hat der auf Flst. Nr. 22475 ansässige Betrieb Erweiterungsabsichten geäußert und möchte eine zusätzliche Lagerhalle errichten. Das Flst. Nr. 22475 ist Teil des Bebauungsplans Industriegebiet I + II‘. Um die gewünschte Erweiterung auf dem Grundstück zu ermöglichen – auch in Berücksichtigung der Reduzierung des Gewerbegrundstücks im Süden zur Verbreiterung der Zufahrt – soll der Bebauungsplan ‚Industriegebiet I + II‘ in diesem Bereich geändert und das Baufenster nach Westen erweitert werden.
Die Änderung bezieht sich nur auf den Zeichnerischen Teil des Bebauungsplans. Eine Änderung der textlichen Festsetzungen ist nicht erforderlich.
Sachverhalt und Verfahrensverlauf
Der räumliche Geltungsbereich des B-Plan-Änderung umfasst das Flurstück Nr. 22475 und das südlich angrenzende Wegegrundstück Flst. Nr. 22476/1 und so eine Fläche mit insgesamt rd. 2.530 qm.
Am 19.11.2024 hat der Gemeinderat Malsch in öffentlicher Sitzung den Aufstellungsbeschluss für die 6. Änderung des Bebauungsplans ‚Industriegebiet I+II‘ gefasst. Die Bebauungsplan-Änderung wird im beschleunigten Verfahren nach § 13a BauGB ohne Durchführung einer Umweltprüfung nach § 2 Absatz 4a BauGB aufgestellt.
In seiner öffentlichen Sitzung am 22.07.2025 hat der Gemeinderat der Gemeinde Malsch den Entwurf zur 6. Änderung des Bebauungsplans ‚Industriegebiet I+II‘ gebilligt und die Beteiligung der Öffentlichkeit, der Behörden und sonstigen Träger öffentlicher Belange nach § 3 Abs. 2 BauGB und § 4 Abs. 2 BauGB beschlossen.
Für den Geltungsbereich ist der Lageplan mit dem Entwurf des Bebauungsplans vom 18.06.2025 maßgebend. Der Planbereich ergibt sich aus folgendem Kartenausschnitt:
Veröffentlichung
Der Entwurf des Bebauungsplans kann vom 01.08.2025 bis einschließlich 05.09.2025 hier eingesehen werden:
Die Planunterlagen werden ebenfalls vom 01.08.2025 bis einschließlich 05.09.2025 im Rathaus Malsch, Hauptstraße 71, 76316 Malsch während den üblichen Sprechstunden, Zimmer 313 ausgelegt und können dort eingesehen werden.
Während der Dauer der o.g. Veröffentlichungsfrist können Stellungnahmen vorgebracht werden. Sie können mündlich oder schriftlich mitgeteilt oder zur Niederschrift gegeben werden. Darüber hinaus können die Stellungnahmen auch per Post: Gemeinde Malsch, Bauverwaltung, Hauptstr. 71, 76316 Malsch oder per E-Mail: bauen@malsch.de eingereicht werden.
Gemäß § 3 Abs. 2 BauGB und § 4 a Abs. 5 BauGB wird darauf hingewiesen, dass Stellungnahmen, die im Verfahren der Öffentlichkeitsbeteiligung nicht fristgerecht abgegeben worden sind, bei der Beschlussfassung über den Bebauungsplan unberücksichtigt bleiben können.
Da das Ergebnis der Behandlung der Anregungen mitgeteilt wird, ist die Angabe der Anschrift des Verfassers erforderlich. Im Zusammenhang mit dem Datenschutz weisen wir ausdrücklich darauf hin, dass ein Bebauungsplanverfahren ein öffentliches Verfahren ist und daher in der Regel alle dazu eingehenden Stellungnahmen in öffentlichen Sitzungen beraten und entschieden werden, sofern sich nicht aus der Art der Einwände oder der betroffenen Person ausdrückliche oder offensichtliche Einschränkungen ergeben. Soll eine Stellungnahme nur anonym behandelt werden, ist dies auf derselben eindeutig zu vermerken.
Malsch, den 31.07.2025
gez. Markus Bechler
Bürgermeister
'Ehemalige Tankstelle Sezanner Straße' gem. § 3 Abs. 2 BauGB in Verbindung mit § 4a Abs. 3 BauGB
Ziele und Zweck der Planung
Die ehemalige Tankstelle im Bereich der nördlichen Sézanner Straße wurde Ende 2020 aufgegeben, so dass die brachgefallene Fläche in einer zentralen Lage von Malsch einer neuen baulichen Nutzung zugeführt werden soll. Auf der bisher bereits versiegelten und gewerblich genutzten Fläche sollen Wohnungen in Mehrfamilienhäusern ermöglicht werden, für in der Gemeinde eine hohe Nachfrage besteht. Hierzu liegen konkrete Planungen vor, die eine Bebauung mit zwei Mehrfamilienhäusern und Tiefgarage in einem Mix unterschiedlicher Wohnungsgrößen vorsehen.
Das Plangebiet ist bisher nicht Bestandteil eines rechtskräftigen Bebauungsplanes. Um die planungsrechtlichen Voraussetzungen für eine Bebauung zu schaffen und diese städtebaulich zu regeln, ist die Aufstellung eines Bebauungsplanes erforderlich.
Sachverhalt und Verfahrensverlauf
Die Gemeinde Malsch ist bestrebt, im Bereich Familienheim – Villa – ehemalige Tankstelle neuen und gleichzeitig bezahlbaren Wohnraum unterschiedlicher Größe zu schaffen.
Am 23.02.2021 hat der Gemeinderat Malsch den Aufstellungsbeschluss für den Bebauungsplan 'Am ehemaligen Bahnübergang' gefasst. Der entsprechende Geltungsbereich umfasst u.a. die Wohngebäude des ehemaligen Familienheim, das ehemalige Jugendhaus Villa und auch das Flurstück der ehemaligen Tankstelle – also auch das Plangebiet des vorliegenden Bebauungsplans 'Ehemalige Tankstelle Sezanner Straße'. Da für den Bereich der ehemaligen Tankstelle bereits eine konkrete, mit der Gemeinde abgestimmte Gebäudeplanung besteht und aufgrund der Brachfläche auch eine hohe Dringlichkeit vorhanden ist, soll dieser Teilbereich durch den gesonderten Bebauungsplan ‚Ehemalige Tankstelle Sezanner Straße‘ vorgezogen werden.
Der Bebauungsplan ‚Ehemalige Tankstelle Sezanner Straße‘ umfasst das Flurstück Nr. 11339 mit insgesamt rd. 1.930 qm bzw. ca. 0,19 ha. Er wird im beschleunigten Verfahren nach § 13a BauGB ohne Durchführung einer Umweltprüfung nach § 2 Absatz 4a BauGB aufgestellt.
Der Gemeinderat der Gemeinde Malsch hat bereits in seiner öffentlichen Sitzung am 21.06.2022 dem Entwurf des Bebauungsplans "Ehemalige Tankstelle Sézanner Straße" zugestimmt und die Beteiligung der Öffentlichkeit, der Behörden und sonstigen Träger öffentlicher Belange nach § 3 Abs. 2 BauGB und § 4 Abs. 2 BauGB beschlossen. Die Beteiligungen nach § 3 Abs. 2 BauGB und § 4 Abs. 2 BauGB wurden im Zeitraum Juli / August 2022 durchgeführt.
Die Gebäudeplanung ist danach ins Stocken geraten. Zwischenzeitlich liegt nun ein grundlegend überarbeiteter Entwurf vor, so dass auch der Bebauungsplan-Entwurf in einigen Punkten angepasst wurde. Die Änderung des Bebauungsplan-Entwurfs erfordern nach § 4a Abs. 3 BauGB eine erneute Beteiligung der Öffentlichkeit, der Behörden und der sonstigen Träger öffentlicher Belange.
In seiner öffentlichen Sitzung am 22.07.2025 hat der Gemeinderat der Gemeinde Malsch den überarbeiteten Entwurf des Bebauungsplans "Ehemalige Tankstelle Sézanner Straße" gebilligt und die erneute Beteiligung der Öffentlichkeit, der Behörden und sonstigen Träger öffentlicher Belange nach § 3 Abs. 2 BauGB und § 4 Abs. 2 BauGB i.V.m. § 4a Abs. 3 beschlossen.
Für den Geltungsbereich ist der Lageplan mit dem Entwurf des Bebauungsplans vom 18.06.2025 maßgebend. Der Planbereich ergibt sich aus folgendem Kartenausschnitt:
Veröffentlichung
Der Entwurf des Bebauungsplans ‚Ehemalige Tankstelle Sezanner Straße‘ kann vom 01.08.2025 bis einschließlich 05.09.2025 hier eingesehen werden:
Die Planunterlagen werden zusätzlich vom 01.08.2025 bis einschließlich 05.09.2025 im Rathaus Malsch, Hauptstraße 71, 76316 Malsch während den üblichen Sprechstunden, Zimmer 313 ausgelegt und können dort eingesehen werden.
Während der Dauer der o.g. Veröffentlichungsfrist können Stellungnahmen vorgebracht werden. Sie können mündlich oder schriftlich mitgeteilt oder zur Niederschrift gegeben werden. Darüber hinaus können die Stellungnahmen auch per Post: Gemeinde Malsch, Bauverwaltung, Hauptstr. 71, 76316 Malsch oder per E-Mail: bauen@malsch.de eingereicht werden.
Gemäß § 3 Abs. 2 BauGB und § 4 a Abs. 5 BauGB wird darauf hingewiesen, dass Stellungnahmen, die im Verfahren der Öffentlichkeitsbeteiligung nicht fristgerecht abgegeben worden sind, bei der Beschlussfassung über den Bebauungsplan unberücksichtigt bleiben können.
Da das Ergebnis der Behandlung der Anregungen mitgeteilt wird, ist die Angabe der Anschrift des Verfassers erforderlich. Im Zusammenhang mit dem Datenschutz weisen wir ausdrücklich darauf hin, dass ein Bebauungsplanverfahren ein öffentliches Verfahren ist und daher in der Regel alle dazu eingehenden Stellungnahmen in öffentlichen Sitzungen beraten und entschieden werden, sofern sich nicht aus der Art der Einwände oder der betroffenen Person ausdrückliche oder offensichtliche Einschränkungen ergeben. Soll eine Stellungnahme nur anonym behandelt werden, ist dies auf derselben eindeutig zu vermerken.
- Stellungnahme aus der Öffentlichkeit: Bitte um Klarstellungen zur Dachbegrünung, Anregung zur Festsetzung der Substratdicke für die Überdeckung der Tiefgarage, Anregung der Festsetzungen zur Fassadenbegrünung,
- Stellungnahme aus der Öffentlichkeit: Anregung einer Gebäudeplanung mit weniger Flächenversiegelung
- Stellungnahme aus der Öffentlichkeit: Anregung nach verbindlichen Anforderungen zur Solarnutzung, Bedenken gegenüber der festgesetzten Dachbegrünung im Hinblick auf die gewünschte Stellung von PV-Anlagen auf den Dachflächen, Bedenken gegenüber dem Umfang der Tiefgarage im Hinblick auf die Versickerung von Niederschlagswasser
Malsch, den 31.07.2025
gez. Markus Bechler
Bürgermeister











