Öffentliche Bekanntmachung
S a t z u n g über die Veränderungssperre für das Gebiet des beabsichtigten Bebauungsplanes „Florianstraße / Neuwiesenstraße“
Auf Grund von § 14 Baugesetzbuch (BauGB) i.V. mit § 4 Gemeindeordnung für Baden-Württemberg (GemO), alle in der jeweils gültigen Fassung hat der Gemeinderat Malsch am 27.01.2026 in öffentlicher Sitzung folgende Veränderungssperre als Satzung beschlossen:
§ 1 Anordnung der Veränderungssperre
Zur Sicherung der Planung im Geltungsbereich des beabsichtigten Bebauungsplanes „Florianstraße / Neuwiesenstraße“ wird eine Veränderungssperre angeordnet.
§ 2 Räumlicher Geltungsbereich der Veränderungssperre
(1) Der räumliche Geltungsbereich der Veränderungssperre ist durch die jeweiligen Grenzen des räumlichen Geltungsbereiches des beabsichtigten Bebauungsplanes „Florianstraße / Neuwiesenstraße“ begrenzt.
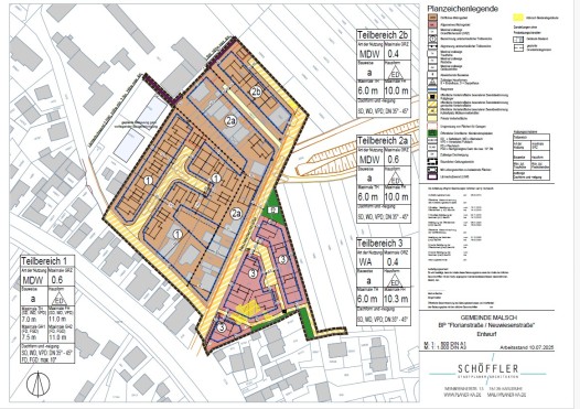
(2) Alle innerhalb des beabsichtigten Bebauungsplanes nach (1) liegenden Grundstücke lt. Lageplan vom 10.07.2025 werden von dieser Veränderungssperre erfasst.
(3) Für den räumlichen Geltungsbereich der Veränderungssperre ist der Übersichtsplan vom 10.07.2025 maßgebend.
§ 3 Inhalt und Rechtswirkung der Veränderungssperre
(1) Im räumlichen Geltungsbereich der Veränderungssperre dürfen:
Vorhaben im Sinne des § 29 BauGB nicht durchgeführt oder bauliche Anlagen nicht beseitigt werden; keine erheblichen oder wesentlich wertsteigernden Veränderungen von Grundstücken und baulichen Anlagen, deren Veränderung nicht genehmigungs-, zustimmungs- oder anzeigenpflichtig ist, vorgenommen werden.
(2) Vorhaben, die vor dem In-Kraft-Treten der Veränderungssperre baurechtlich genehmigt worden sind, Vorhaben, von denen die Gemeinde nach Maßgabe des Bauordnungsrechts Kenntnis erlangt hat und mit deren Ausführung vor dem In-Kraft-Treten der Veränderungssperre hätte begonnen werden dürfen, sowie Unterhaltungsarbeiten und die Fortführung einer bisher ausgeübten Nutzung werden von der Veränderungssperre nicht berührt.
(3) In Anwendung von § 14 Abs. 2 BauGB kann von der Veränderungssperre eine Ausnahme zugelassen werden, wenn keine überwiegenden öffentlichen Belange entgegenstehen. Die Entscheidung hierüber trifft die Baugenehmigungsbehörde im Einvernehmen mit der Gemeinde.
§ 4 In – Kraft – Treten
Die Satzung über die Anordnung der Veränderungssperre tritt mit der öffentlichen Bekanntmachung in Kraft (§ 16 Abs. 2 BauGB).
§ 5 Geltungsdauer
Für die Geltungsdauer der Veränderungssperre ist § 17 BauGB maßgebend.
Malsch, 29.01.2026
Markus Bechler
Bürgermeister
